Proiect Casa Parter cu Garaj — 100 mp

Locuinta moderna pe un singur nivel cu living open-space generos de 62 mp, 2 dormitoare cu dressing, baie contemporana si garaj integrat. Design cu acoperis plat si finisaje premium.

Casa Parter cu Garaj — Design contemporan cu spatii generoase

Proiectul „Casa Parter cu Garaj" este o locuinta moderna de aproximativ 100 mp utili, conceputa pentru familii care doresc spatiu generos, confort si functionalitate maxima pe un singur nivel. Living-ul open-space de peste 60 mp creeaza o atmosfera de lux, iar garajul integrat de 29 mp adauga valoare si confort in utilizarea zilnica.

Compartimentare inteligenta

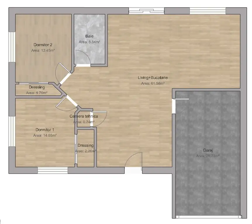
Living + Bucatarie

61,58
mp — open-space

Dormitor 1

14,55
mp + dressing 2,26 mp

Dormitor 2

13,45
mp + dressing 1,76 mp

Baie

5,54
mp

Camera Tehnica

0,74
mp

Garaj

28,73
mp — integrat

Living-ul open-space de 61,58 mp este inima casei — un spatiu impresionant care integreaza zona de zi, bucataria si dining-ul intr-un concept deschis, delimitat elegant de un perete decorativ din sticla riflata. Ferestrele generoase aduc lumina naturala abundenta si ofera vedere spre gradina. Cele doua dormitoare beneficiaza fiecare de dressing propriu, asigurand spatiu de depozitare eficient. Baia moderna de 5,54 mp include cabina de dus din sticla si finisaje din marmura.

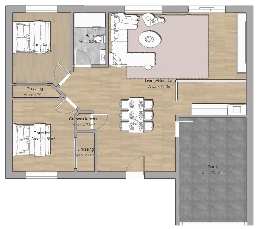
Planuri arhitecturale

Plan parter mobilat – casa parter cu garaj 100 mp, living open-space, 2 dormitoare cu dressing, baie, camera tehnica, garaj

De ce o casa parter cu garaj integrat?

Garaj Integrat — Confort Zilnic

Garajul de 29 mp este parte din structura casei, oferind acces protejat direct din interior. Masina, bicicletele si echipamentele sunt protejate fara a ocupa spatiu din curte.

Living Open-Space Premium

Cu peste 60 mp de spatiu deschis, zona de zi ofera o senzatie de amploare rara la casele de aceasta suprafata. Ideal pentru familii care primesc oaspeti sau lucreaza de acasa.

Acoperis Plat — Design Modern

Acoperisul plat confera un aspect contemporan si permite instalarea viitoare a panourilor fotovoltaice sau amenajarea unei terase verzi.

Dormitoare cu Dressing

Fiecare dormitor dispune de dressing propriu, eliminand nevoia de dulapuri voluminoase si pastrand camera ordonata si spatioasa.

Structura si materiale

Casa este proiectata cu structura din beton armat si zidarie, asigurand rezistenta seismica si durabilitate pe termen lung. Acoperisul plat tip terasa cu hidroizolatie premium este conceput pentru clima romaneasca si permite utilizarea eficienta a intregii suprafete construite. Finisajul exterior alb cu detalii in gri inchis creeaza un contrast estetic modern, completat de gardul din lemn natural.

Fisa Tehnica

Model Casa Parter cu Garaj
Regim inaltime Parter (P)
Suprafata utila ~100 mp
Suprafata garaj 28,73 mp
Dormitoare 2 (cu dressing)
Bai 1
Structura Beton armat + zidarie
Acoperis Plat (terasa)
Garaj Integrat — 1 loc
Proiect inclus Complet (DTAC + PT)

Vrei acest Proiect?

Solicita oferta personalizata. Proiectul poate fi adaptat la terenul si cerintele tale specifice.