Proiect Casa cu Mansarda — 135 mp

Locuinta moderna pe doua nivele cu 4 dormitoare, living generos, 2 bai, terasa si balcon. Proiect complet gata de autorizatie.

Casa cu mansarda — Locuinta moderna pe doua nivele

Casa cu mansarda reprezinta alegerea perfecta pentru familiile care isi doresc confort si functionalitate, fara a depasi bugetul stabilit. Cu o suprafata utila de 135,80 mp, aceasta locuinta ofera un echilibru intre designul eficient si cerintele unui trai modern, oferind spatiu suficient pentru o familie in crestere. Datorita formei sale simple si compacte, casa se remarca printr-un raport excelent intre utilitate si costurile de constructie, fiind un proiect perfect pentru familii de orice dimensiune.

Compartimentare

📐 Parter

Camera de Zi

20,84
mp

Bucatarie

12,65
mp

Dormitor

12,72
mp

Hol

8,46
mp

Baie

3,38
mp

Casa Scarii

4,00
mp

Terasa

5,44
mp
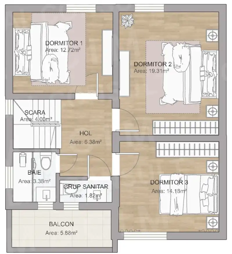
🏠 Mansarda

Dormitor 1

12,72
mp

Dormitor 2

19,31
mp

Dormitor 3

14,18
mp

Hol

6,38
mp

Baie

3,38
mp

Grup Sanitar

1,82
mp

Casa Scarii

4,00
mp

Balcon

5,88
mp

La parter, veti gasi un living generos de 20,84 mp, o bucatarie spatioasa (12,65 mp), un dormitor suplimentar de 12,72 mp si o baie moderna (3,38 mp). Terasa de 5,44 mp extinde zona de relaxare, iar holul si casa scarii adauga fluiditate accesului intre camere. Mansarda ofera trei dormitoare confortabile (14,18 mp, 19,31 mp si 12,72 mp), ideal amenajate pentru a oferi intimitate si spatiu propriu fiecarei persoane. Aceasta mai include o baie completa (3,38 mp) si un grup sanitar suplimentar (1,82 mp), plus un balcon de 5,88 mp, ce adauga un plus de valoare locuintei.

Planuri arhitecturale

Plan parter mobilat – casa cu mansarda 135 mp, living, bucatarie, dormitor, baie

De ce o casa cu mansarda?

Spatiu Extins pe Doua Nivele

Ideal pentru familii ce doresc camere suplimentare, oferind mai multa libertate si intimitate pentru fiecare membru al familiei.

Costuri Reduse de Constructie

Datorita formei eficiente si structurii compacte (84,10 mp construiti), economisesti material, timp si manopera comparativ cu alte solutii.

Optimizare Spatiu

Mansarda poate fi utilizata atat pentru dormitoare suplimentare, cat si pentru diverse destinatii, adaptandu-se nevoilor familiei pe termen lung.

Accesibilitate si Confort

Un design accesibil pentru intreaga familie, cu regim P+M echilibrat: zona de zi la parter, zona de noapte la mansarda.

Structura si materiale

Locuinta este construita din zidarie confinata, o alegere excelenta din punct de vedere al eficientei si durabilitatii. Acoperisul in doua ape (sarpanta) asigura atat un aspect traditional placut, cat si eficienta in distribuirea temperaturii si protectie impotriva intemperiilor. Designul simplu si compact al casei, cu o suprafata construita de 84,10 mp si o inaltime de 4,30 m la cornisa, permite o executie rapida si costuri reduse. Dimensiunile in plan (9,45 m × 8,90 m) fac casa potrivita pentru majoritatea loturilor din zonele rezidentiale.

Randari interioare

Fisa Tehnica

Model Casa cu Mansarda
Regim inaltime Parter + Mansarda
Suprafata utila 135,80 mp
Suprafata construita 84,10 mp
Dimensiuni (L×l) 9,45 × 8,90 m
Inaltime cornisa 4,30 m
Dormitoare 4
Bai 2 + grup sanitar
Destinatie Locuinta unifamiliala
Structura Zidarie confinata
Acoperis Sarpanta (doua ape)
Proiect inclus Complet (DTAC + PT)

Vrei acest Proiect?

Solicita oferta personalizata. Proiectul poate fi adaptat la terenul si cerintele tale specifice.